Bienvenue sur le portail officiel de la Chambre ImmobilièrePlus d’infos

Maison 3 chambres à vendre à Hellange

Réf: 35 HELLANGE 1802 RK


1.158.000 €
228 m2
vivi property bed 3



Description


A Hellange, maison unifamiliale d'une surface habitable de 132 m2 et totale de 228m2 sur terrain de 34.49ares.

Elle se compose comme suit:
- Au rez-de-chaussée : hall d'entrée, garage pour 2 voitures, cuisine ouverte sur vaste séjour/salle à manger avec accès à la terrasse et au jardin, débarras, WC séparés,
- Au 1er étage : hall de nuit, 3 chambres à coucher dont une suite parentale avec dressing, salle de bains, WC séparés
- Combles : combles aménageables, local technique

Les plans peuvent être modifiés selon vos souhaits.

Classe énergétique : ABA

PRIX : 1.158.000 euros TTC 3% (sous réserve de la décision de l'AED)

Réf agence 35 HELLANGE 1802 RK
vivi property conditions

Conditions

  • Prix 1.158.000 €
vivi property interior

Intérieur

  • Toilettes individuelles Oui
  • Cuisine séparée Oui
  • Salon Oui
  • Buanderie Oui
  • Salle de bain 1
  • Volets électriques Oui
  • Hall Oui
vivi property exterior

Extérieur

  • Surface 4.49 ares
  • Garage 2
  • Parking extérieur 1
  • Jardin Oui
  • Terrasse Oui
  • Surface de la terrasse 17.08 m2
vivi property energy

Energie

  • Triple vitrage Oui
  • Chauffage au sol Oui
  • Pompe à chaleur Oui
  • Classe énergétique (DPE) A
  • Isolation thermique B
  • Gaz à effet de serre (GES/CO2) A

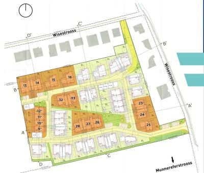
Projet de construction à vendre

Dans un nouveau lotissement situé à Hellange, nouvelle construction de maisons unifamiliales jumelées par le garage d'une surface habitable de plus de 180 m2 à partir de 1.327.000 euros.
Le futur lotissement Iwwert der Sauerwiss se trouve au croisement entre Wisestrooss et la Route de Mondorf à Hellange et comptera de nombreuses maisons unifamiliales.

Plus d'informations en nous contactant au +352 26 29 68 08.

Réf. agence : HELLANGE 1802 RK

Les biens disponibles du projet


Contacter l'agence

Commune
Localité

Si l'adresse exacte n’est pas renseignée, le centre de la localité sera indiqué sur la carte.