Bienvenue sur le portail officiel de la Chambre ImmobilièrePlus d’infos

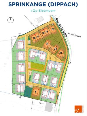
Terrain constructible à vendre à Dippach

Réf: 10 TER SPRINKANGE 0312 LN


577.500 €
4.62 ares
vivi property bed 4



Description


Terrain à bâtir de 4.62 ares située dans le lotissement "Op Eizemuer" à Sprinkrange (Dipach).

Le terrain est vendu libre de contrat de construction, vous permettant de bâtir la maison ou villa de vos rêves avec l'architecte ou l'entreprise de votre choix. Possibilité de construction une maison unifamiliale libre des 4 côtés, idéale pour une habitation lumineuse et ouverte sur la nature.

PRIX : 577.500.- Euros

Plus d'informations au +352 26 29 68 08.

Réf. 10 TER SPRINKANGE 0312 LN
vivi property conditions

Conditions

  • Prix 577.500 €
vivi property interior

Intérieur

  • Douche individuelle Oui
  • Toilettes individuelles Oui
  • Salon Oui
  • Buanderie Oui
  • Salle de bain 1
  • Grenier Oui
  • Volets électriques Oui
  • Hall Oui
vivi property exterior

Extérieur

  • Surface 4.62 ares
  • Garage 2
  • Parking extérieur 2
  • Jardin Oui
  • Terrasse Oui
vivi property energy

Energie

  • Triple vitrage Oui
  • Chauffage au sol Oui
  • Pompe à chaleur Oui
  • Classe énergétique (DPE) A
  • Isolation thermique B
  • Gaz à effet de serre (GES/CO2) A

Projet de construction à vendre

Dans le nouveau lotissement "Op Eizemuer" situé à Sprinkrange, maisons unifamiliales à vendre
sur terrains compris entre 4.61 et 4,94 ares.

ENVIRONS
Sprinkange appartient à la commune de Dippach dans le canton de Capellen et se situe a...

Les biens disponibles du projet


Contacter l'agence

Commune
Localité

Si l'adresse exacte n’est pas renseignée, le centre de la localité sera indiqué sur la carte.