Bienvenue sur le portail officiel de la Chambre ImmobilièrePlus d’infos

Maison 4 chambres à vendre à Stegen

Réf: 16 STEGEN 0303 RK


1.048.000 €
285 m2
vivi property bed 4



Description


Maison unifamiliale en bande d'une surface habitable de 160m2 et totale de 285m2 sur un terrain de 2.96 ares.

La maison se compose comme suit:
- Au rez-de-chaussée : hall d'entrée, cuisine ouverte sur belle salle à manger avec accès à la terrasse et au jardin, séjour, WC séparé, réserve, garage
- Au 1er étage : hall de nuit, 4 chambres à coucher dont une suite parentale avec large dressing et salle de douche privative, salle de bain, buanderie
- Combles aménageables de 65 m2, local technique

Classe énergétique : AA+A+

PRIX : 1.048.000.- Euros TTC 3% (sous réserve de la décision de l'AED)

Plus d'informations au +352 26 29 68 08

Réf. agence : 16 STEGEN 0303 RK
vivi property conditions

Conditions

  • Prix 1.048.000 €
vivi property interior

Intérieur

  • Douche individuelle Oui
  • Toilettes individuelles Oui
  • Cuisine séparée Oui
  • Salon Oui
  • Buanderie Oui
  • Salle de bain 2
  • Grenier Oui
  • Volets électriques Oui
  • Hall Oui
vivi property exterior

Extérieur

  • Surface 2.96 ares
  • Garage 1
  • Parking extérieur 1
  • Jardin Oui
  • Terrasse Oui
  • Surface de la terrasse 15.1 m2
vivi property energy

Energie

  • Triple vitrage Oui
  • Chauffage au sol Oui
  • Pompe à chaleur Oui
  • Classe énergétique (DPE) A
  • Isolation thermique A+
  • Gaz à effet de serre (GES/CO2) A+

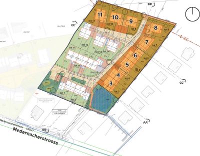
Projet de construction à vendre

Maisons unifamiliales à vendre avec ou sans contrat de construction dans le nouveau lotissement "Thiergart" à Stegen.

SITUATION

Stegen est un petit village calme à l'est du Luxembourg qui appartient à la commune de la Vallée de l'Ernz d...

Les biens disponibles du projet


Contacter l'agence

Localité

Si l'adresse exacte n’est pas renseignée, le centre de la localité sera indiqué sur la carte.