Bienvenue sur le portail officiel de la Chambre ImmobilièrePlus d’infos

Maison 4 chambres à vendre à Stegen

Réf: 4 STEGEN 2204 LN


972.000 €
208 m2
vivi property bed 4



Description


Maison unifamiliale libre des 3 côtés d'une surface habitable de 160m2 et totale de 208m2 sur un terrain de 3.54 ares.

La maison se compose comme suit:
- Au rez-de-jardin : hall, cuisine ouverte sur séjour/salle à manger avec accès à la terrasse et au jardin, WC séparé, réserve, débarras, local technique/buanderie, cave
- Au rez-de-chaussée : hall d'entrée, 4 chambres à coucher dont une suite parentale avec dressing et salle de douche privative, salle de bain, garage pour une voiture

Classe énergétique : ABA

PRIX : 972.000.- Euros TTC 3% (sous réserve de la décision de l'AED)

Plus d'informations au +352 26 29 68 08

Réf. agence :
4 STEGEN 2204 LN
vivi property conditions

Conditions

  • Prix 972.000 €
vivi property interior

Intérieur

  • Douche individuelle Oui
  • Cuisine séparée Oui
  • Salon Oui
  • Buanderie Oui
  • Salle de bain 2
  • Volets électriques Oui
  • Hall Oui
vivi property exterior

Extérieur

  • Surface 3.54 ares
  • Garage 1
  • Parking extérieur 1
  • Jardin Oui
  • Terrasse Oui
  • Surface de la terrasse 17.12 m2
vivi property energy

Energie

  • Triple vitrage Oui
  • Chauffage au sol Oui
  • Pompe à chaleur Oui
  • Classe énergétique (DPE) A
  • Isolation thermique B
  • Gaz à effet de serre (GES/CO2) A

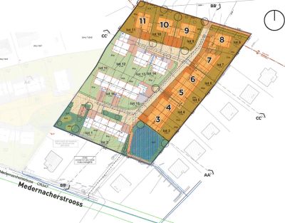
Projet de construction à vendre

Maisons unifamiliales à vendre avec ou sans contrat de construction dans le nouveau lotissement "Thiergart" à Stegen.

SITUATION

Stegen est un petit village calme à l'est du Luxembourg qui appartient à la commune de la Vallée de l'Ernz d...

Les biens disponibles du projet


Contacter l'agence

Localité

Si l'adresse exacte n’est pas renseignée, le centre de la localité sera indiqué sur la carte.